بررسی انواع کندوهای مدرن در ایران

مطالب و مقالات ارسالی در مورد زنبورعسل و زنبورداری که توسط دوستان و کاربران ارسال شده است.
پرورش ملکه زنبورعسل,اصلاح نژاد,اصلاح نژاد,بيماريها وافات زنبورعسل,بازديد كندو و نگهداري,تجهيزات زنبورداري,لغات انگليسي زنبورعسل,اخبار و متفرقه,
شكل شناسي و فيزيولوژي,تغذيه زنبورعسل وزمستان گذراني

مدیر انجمن: mellifera

نمایه کاربر
mellifera
مدیر سایت زنبورعسل ایران
مدیر سایت زنبورعسل ایران
پست: 4166
تاریخ عضویت: پنج‌شنبه ۲۵ آذر ۱۳۸۹, ۱۲:۰۰ ق.ظ
محل اقامت: آذربایجان شرقی-مرند
تشکر کرده: 4565 دفعه
تشکر شده: 2800 دفعه
تماس:

بررسی انواع کندوهای مدرن در ایران

پست توسط mellifera »

[JUSTIFY]بررسی انواع کندوهای مدرن در ایران
چکیده
کندوی مدرن زنبور عسل ( نوع لانگستروت) بیش از 60 سال است که وارد ایران شده است. در طی این سالها کندو دستخوش تغییراتی مانند حذف درپوش داخلی، یکپارچه شدن بدنه و کف و عدم یکنواختی در اندازه های بدنه و قاب گردیده و از کارایی آن کاسته شده است.
از دیگر سو هوای کره زمین و همچنین ایران در طی 30 الی 40 سال گذشته گرم تر شده و کندوهای موجود که برای چنین شرایطی طراحی نشده اند توان حفاظت از کلنی در گرمای تابستان را ندارند.
از آنجا که صنعت زنبورداری مانند دیگر بخش های اقتصاد در فضای رقابتی قرار دارد بازنگری نسبت به وضع کندوی زنبورعسل و رفع نقایص آن در راستای افزایش بهره وری امری ضروری و گریز ناپذیر می باشد.
اداره استاندارد ایران در سال 1354 استاندارد کندوی زنبورعسل را با شماره 1416 تدوین نموده و در سال 62 آن را بازنگری کرده است . اما این استاندارد در بین زنبورداران شناخته شده نبوده و مورد استفاده قرار نگرفته است.
در چنین شرایطی بهترین گزینه برای رفع کاستی های کندوی زنبورعسل بازنگری دوم استاندارد 1416 با حضور همه ی بخش های صنعت زنبورداری و تشویق زنبورداران در کاربست آن است.

مقدمه:
زنبور عسل حشره‌ای لانه‌ساز است که در ساخت لانه خود از اصولی خاص اما یکسان پیروی می‌کند. این حشره در شیار کوه‌ها یا تنه درختان لانه می‌سازد و برای تأمین غذای خود، زاد و ولد و زمستان‌گذرانی، عسل اندوخته می‌کند که ممکن است اندکی عسل مازاد بر نیازش نیز تولید کند. انسان، با کشف و مدیریت رفتارهای طبیعی زنبورعسل، توانست عسل بیشتری به‌دست آورد. با گذشت زمان و افزایش جمعیت، افزایش تقاضا رخ داد و این موضوع به‌تدریج پیشرفت علم زنبورداری و ابزارهای آن و در نهایت پیشرفت صنعت زنبورداری را سبب شد که نتیجه آن تولید عسل بیشتر بود. تولید صنعتی، عسل را به کالایی تجاری تبدیل کرد. کالای تجاری قوانین و مقررات مخصوص به خود را داراست و با رقابت پیوندی تنگاتنگ دارد.
شبکه ارتباط جهانی و سهولت در حمل و نقل کالا رونق بازارهای محلی و سنتی را کمرنگ کرده و این بازارها دیگر محل امنی برای تولیدکنندگان با هر قیمت و کیفیتی نیستند. در بازار ایران نیز چندی است که بخش‌های مختلفی از صنعت به دلیل نداشتن توان رقابتی با کالاهای وارداتی، دچار رکود و یا تعطیلی شده‌اند و نشانه‌های آشکاری از این تهدید هم در صنعت زنبورداری به چشم می‌خورد. این تهدید اگر‌چه جدی و ویرانگر است، چنانچه مدیریت شود، می‌تواند فرصتی برای رشد و تغییر در روند ساز و کارهای ناکارآمد پیشین باشد.
بازار، نیازمند عسل به مقدار زیاد و کیفیت مناسب و قیمتی رقابتی است. افزایش تعداد کندو راهکاری پایانی، پرهزینه و کم‌اثر کار است. پیش از این، باید به سراغ راه‌های افزایش بهره‌وری رفت؛ چه در زمینه کاهش هزینه‌های تولید و چه در بالا بردن میزان عسل تولید‌شده در هر کندو. برای افزایش بهره‌وری تمامی عوامل تأثیرگذار بر این صنعت باید جزء به جزء بازنگری شوند.
عوامل تأثیرگذار بر صنعت زنبورداری
در ابتدا به معرفی عوامل تأثیرگذار بر صنعت زنبورداری می‌پردازیم. این عوامل عبارت‌اند از: الف) زنبوردار، ب) نهادهای صنفی، ج) نهادهای دولتی سیاست‌گذار و مجری، د) نهادهای علمی و تحقیقاتی دانشگاه‌ها، ه) صنایع وابسته، و) نژاد زنبور، ز) بیماری، راه‌های پیشگیری و درمان، ح) سرزمین و کوچ، و ط) کندو و ابزار.
عوامل یاد شده حلقه‌های به هم پیوسته صنعت زنبورداری‌اند که سستی و کاستی در هر یک، در کار این صنعت خلل وارد خواهد کرد.
این نوشتار با هدف بررسی کندوی زنبورعسل مدرن در ایران به رشته تحریر درآمده است .
کندوی مدرن زنبورعسل پس از ورود به ایران برخی از ویژگی های خود را که حاصل تجربیات چندین ساله زنبورداران بوده از دست داده است .
گرمایش کره زمین و همچنین ایران طلب میکند که افزون بر سیستم های عایق بندی کندوهای مدرن روش جدیدی برای حفاظت از کلنی در گرمای تابستان طراحی و به کار گرفته شود .
یکسان نبودن اندازه کندو در ایران با برهم زدن سیستم داخلی کندو تولید را کاهش داده و کار با کندو را وقت گیر و دشوار کرده است.استفاده از ابزارهای مدرن استحصال عسل با هدف کاهش هزینه و رعایت بهداشت نیازمند قابهای یک اندازه است که امکان کاربست آن در زنبورداری ایران وجود ندارد.
کندو ابزار سرمایه ای برای زنبوردار است، استحکام و طول عمر آن نقشی جدی در اقتصاد این صنعت دارد و ضروری است که تکنولوژی های رایج را در تولید آن به کار گرفت.
زنبور حشره ای لانه ساز است و همین کار سبب گردیده است که زنبورداران رفع برخی کاستی های کندو را به خود کلنی واگذار نمایند، در شرایطی که هدف از زنبورداری به‌دست آوردن عسل و فرآورده‌های کندو است، لانه‌سازی و یا فعالیت‌های جبرانی زنبور جهت برطرف کردن نقایص کندو سبب کاهش شهد‌آوری به کندو شده و همچنین مصرف بیشتر عسل را سبب می‌شود. هنر زنبورداری در آن است که زنبور هر چه کمتر به کار لانه‌سازی پرداخته و در کار زادآوری، جمع‌آوری عسل یا اهداف زنبوردار باشد.
تلاش در راه بهبود صنعت زنبورداری از آنرو پُر‌اهمیت است که سرزمین چهار فصل ایران ویژگی‌های لازم برای رشد و گسترش این صنعت را داراست ( مزیت نسبی) و زنبور نیز به عنوان حشره گرده‌افشان نقش حیاتی در چرخه زیستی و افزایش تولیدات کشاورزی دارد.

[/JUSTIFY]


نمایه کاربر
mellifera
مدیر سایت زنبورعسل ایران
مدیر سایت زنبورعسل ایران
پست: 4166
تاریخ عضویت: پنج‌شنبه ۲۵ آذر ۱۳۸۹, ۱۲:۰۰ ق.ظ
محل اقامت: آذربایجان شرقی-مرند
تشکر کرده: 4565 دفعه
تشکر شده: 2800 دفعه
تماس:

Re: بررسی انواع کندوهای مدرن در ایران

پست توسط mellifera »

[JUSTIFY]تاریخچه کندوی زنبور عسل:
کندوی مدرن سابقه‌ای 160 ساله دارد. زنبورداران طی سال‌های متمادی کار و دقت در رفتار زنبورعسل توانستند ویژگی‌های کندوی زنبورعسل را که از اصولی خاص و یکسان تبعیت می‌کند، کشف کنند. در آمریکا لانگستروت، کاشف فضای زنبور (bee space)، کندویی اختراع کرد که هم‌اکنون به همین نام معروف است. در دیگر کشورها نیز براساس همین اصول مدل‌های دیگری از کندوی زنبورعسل ساخته شده‌ است. در ساخت کندو در کشورهای مختلف دو نوع اندازه در نظر گرفته می‌شود.
1- اندازه‌ بیولوژیک (اندازه‌های اجباری):
اندازه‌هایی‌اند که توسط زنبور شکل گرفته و در اکثر نژادهای زنبور عسل اروپایی با اندک تفاوتی یکسانند. ( جدول شماره1) این اندازه‌ها توسط انسان ایجاد نشده، بلکه کشف شده‌اند.

2- اندازه‌های جغرافیایی- اقتصادی:
زنبورداران در مناطق مختلف دنیا با توجه به شرایط آب و هوایی، روش‌های زنبورداری، شرایط کوچ و گاه سلیقه‌های خاص، کندوهای مختلفی طراحی کرده و ساخته‌اند که گاه بسیار با هم متفاوتند، اما در اندازه‌های بیولوژیک با هم مشترکند. ( جدول شماره 2)

از میان کندوهای اشاره‌شده کندوی لانگستروت یکی از پرطرفدارترین کندوها در میان زنبورداران دنیاست. نوع کنونی کندوی لانگستروت طی سال‌ها تکامل یافته و کارایی خود را به اثبات رسانده است. عمده کندوهای مدرن ایران نیز از این نوع کندوست. پیش از بررسی کندوی زنبور عسل ایران، ضروری است که به اختصار کندوی لانگستروت آمریکا را از نظر طرح و اندازه شرح دهیم تا به عنوان شاهد مورد استفاده قرار گیرد.
ویژگی‌های کندوی لانگستروت آمریکا
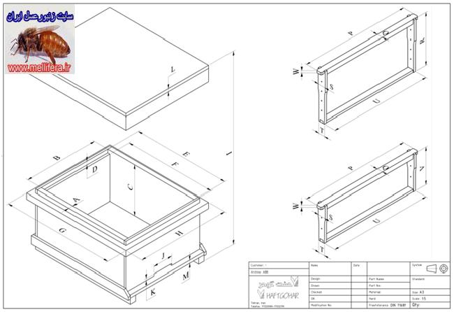
در این کندو همه‌ اندازه‌های بیولوژیک لحاظ شده است. بدنه کندو از کف آن جداست و با طبق تفاوتی نداشته و امکان جابجایی با یکدیگر را دارند. کندو دارای درپوش داخلی است که با دو لایه کردن سقف کندو عایق مناسبی را در برابر گرما و سرما ایجاد می‌کند. کندوی لانگستروت آمریکا فاقد لبه‌های چفت‌شونده بوده واتصال طبقات آن با یکدیگر وزنی است. این کندو هنگام جابجایی باید میخکوبی وتسمه‌کشی شود، با این حال در جاده‌های ناهموار امکان از هم‌گسیختگی آن وجود دارد. شکل های شماره 1 ، 2 و 3.


شکل 1- قاب کندوی لانگستروت آمریکا -اندازه‌ها از اینچ به میلی‌متر تبدیل و با کسر یا اضافه کردن 2/0 میلی‌متر گرد شده‌اند؛ مثال اندازه 7/37 به 5/37 و یا اندازه 2/57 به 57 تغییر یافته است. (3 )
شکل 2- کندوی لانگستروت آمریکا - اندازه‌ها از اینچ به میلی‌متر تبدیل و با کسر یا اضافه کردن 2/0 میلی‌متر گرد شده‌اند؛ مثال اندازه 7/37 به 5/37 و یا اندازه 2/57 به 57 تغییر یافته است. ( 3 )
شکل 3- نمای برش‌خورده کندوی لانگستروت آمریکا و اندازه قاب آن ( 4 )


توجه:
قسمتی از اندازه ارتفاع کندوی لانگستروت آمریکا (حدود 9.5 الی 16 میلی‌متر) در کف کندو قرار می‌گیرد که گاه از نظر سازندگانی که کندو را ندیده‌اند و می‌خواهند آن را از روی نقشه بسازند، پنهان می‌ماند. ارتفاع داخلی کندوی لانگستروت آمریکا برابر است با مجموع ارتفاع طبق (244.5 میلی‌متر) و ارتفاع پله کف (9.5 الی 16 میلی‌متر) که می‌شود 254 الی 260.5 میلی‌متر.
کندوی لانگستروت در دیگر کشورها
کندوی لانگستروت در هماهنگی با استانداردهای دیگر کشورها و یا نیازهای زنبورداران همان مناطق دستخوش تغییرات اندکی شد. ( جدول شماره 3 ) برای نمونه، طول قاب در کندوی لانگستروت آمریکا و در سیستم اندازه‌گیری انگلیسی (imperial measurement) 19 اینچ (اندازه گرد‌شده) که برابر با 482.5 میلی‌متر است. کشورهایی مانند دانمارک با استاندارد متریک طول قاب را عدد گرد‌شده 480 میلی‌متر قرار داده‌اند. برخی کشورها کندوی لانگستروت 8 ،9 ،11 و یا 13 قاب ساخته‌اند.

تفاوت میان کندوی لانگستروت در آمریکا و برخی از کشورها مشکلی ایجاد نمی‌کند، فقط ضروری است در یک منطقه اقتصادی زنبورداری؛ منطقه‌ای که زنبورداران تبادل قاب و کندو دارند، اندازه‌ کندوها یکسان باشد و این همان استاندارد ملّی یا منطقه‌ای است.
[/JUSTIFY]
پیوست ها
جدول 1- اندازه‌های بیولوژیک ( 1 )
جدول 1- اندازه‌های بیولوژیک ( 1 )
جدول 2– مشخصات برخی کندوهای رایج ( 2 )
جدول 2– مشخصات برخی کندوهای رایج ( 2 )
قالب طرح دادانت برای لانگستروت<br />شکل 1- قاب کندوی لانگستروت آمریکا -اندازه‌ها از اینچ به میلی‌متر تبدیل و با کسر یا اضافه کردن 2/0 میلی‌متر گرد شده‌اند؛ مثال اندازه 7/37 به 5/37 و یا اندازه 2/57 به 57 تغییر یافته است. (3 )
قالب طرح دادانت برای لانگستروت
شکل 1- قاب کندوی لانگستروت آمریکا -اندازه‌ها از اینچ به میلی‌متر تبدیل و با کسر یا اضافه کردن 2/0 میلی‌متر گرد شده‌اند؛ مثال اندازه 7/37 به 5/37 و یا اندازه 2/57 به 57 تغییر یافته است. (3 )
شکل 2- کندوی لانگستروت آمریکا - اندازه‌ها از اینچ به میلی‌متر تبدیل و با کسر یا اضافه کردن 2/0 میلی‌متر گرد شده‌اند؛ مثال اندازه 7/37 به 5/37 و یا اندازه 2/57 به 57 تغییر یافته است. ( 3 )
شکل 2- کندوی لانگستروت آمریکا - اندازه‌ها از اینچ به میلی‌متر تبدیل و با کسر یا اضافه کردن 2/0 میلی‌متر گرد شده‌اند؛ مثال اندازه 7/37 به 5/37 و یا اندازه 2/57 به 57 تغییر یافته است. ( 3 )
شکل 3- نمای برش‌خورده کندوی لانگستروت آمریکا و اندازه قاب آن ( 4 )
شکل 3- نمای برش‌خورده کندوی لانگستروت آمریکا و اندازه قاب آن ( 4 )
جدول 3– اندازه کندوی لانگستروت در کشورهای مختلف -اندازه‌ها به میلی‌متر است. ( 1 )
جدول 3– اندازه کندوی لانگستروت در کشورهای مختلف -اندازه‌ها به میلی‌متر است. ( 1 )
نمایه کاربر
mellifera
مدیر سایت زنبورعسل ایران
مدیر سایت زنبورعسل ایران
پست: 4166
تاریخ عضویت: پنج‌شنبه ۲۵ آذر ۱۳۸۹, ۱۲:۰۰ ق.ظ
محل اقامت: آذربایجان شرقی-مرند
تشکر کرده: 4565 دفعه
تشکر شده: 2800 دفعه
تماس:

Re: بررسی انواع کندوهای مدرن در ایران

پست توسط mellifera »

[JUSTIFY]کندوهای زنبور عسل در ایران
همانند دیگر کشورها، عواملی همچون سلیقه، روش زنبورداری، آب و هوا و پوشش گیاهی سبب گردیده تا زنبورداران ایران نیز کندوهای مختلفی را مورد استفاده قرار دهند.
در ایران کندوی لانگستروت با بیشترین تعداد و در کنار آن کندوی دادانت، کندوی اردبیلی وکندوی نجف‌آبادی (با کندوی لانگستروت نجف‌آبادی اشتباه نشود.) به تعداد محدودی استفاده می‌شود. تنوع مدل‌های کندو اِشکال چندانی در کار زنبورداری ایجاد نمی‌کند، مهم آن است که این مدل‌های مختلف کندو اندازه‌های یکسان داشته باشند. از آنجا که بیشتر کندوهای مورد استفاده در ایران از نوع لانگستروت است به همین جهت این نوع کندو را مورد بررسی قرار داده‌ایم.
کندوی لانگستروت ایران که نزدیک به 60 سال از ورود آن به ایران می‌گذرد نوع خاصی از کندوی لانگستروت است که به آن کندوی مهاجرتی نیز گفته می‌شود. فضای خالی زیر در کندو به منظور خوشه زدن زنبورها، لبه‌های چفت شونده، فرم دسته‌ها و دریچه پرواز کشویی، جابجایی این کندو را به‌ویژه در جاده‌های کوهستانی و ناهموار آسان ساخته است.

کندوی لانگستروت استاندارد ایران:
مؤسسه استاندارد و تحقیقات صنعتی ایران و سازمان‌های مرتبط با زنبورعسل، برای اولین بار در سال 1354، اقدام به تهیه استاندارد کندوی زنبور عسل کرده و سپس در سال 1362 این استاندارد را مورد تجدید نظر قرار داده‌اند. ( 5 )
این استاندارد حاوی نکات بسیار دقیق درمورد ساخت کندو است. اندازه‌های این استاندارد با اندازه‌های کندوی لانگستروت آمریکا تفاوت‌هایی دارد. در بخش 4-1 فاصله بین چوب قاب و دیواره کندو اندازه فضای زنبور رعایت نشده است. ( شکل شماره 4 ) در تغییراتی که در کف کندو ایجاد شده، دریچه پرواز در بدنه کندو قرار گرفته، در نتیجه بدنه و طبق از یکدیگر متفاوت شده‌اند و امکان جابجایی بدنه و طبق از دست رفته است.


شکل 4- نمای برش‌خورده کندوی لانگستروت استاندارد ایران و اندازه قاب آن ( 4 )

در بخش 4-4 ارتفاع طبق 245 میلی‌متر است که سبب ایجاد فاصله اضافی بین قاب بالا و پایین و برهم خوردن فضای زنبور شده است. در تدوین این استاندارد نماینده زنبورداران و کندوسازان حضور نداشته‌اند. (استاندارد 1416، کمیسیون فنی کندوی زنبور عسل، ص 1). این استاندارد در میان زنبورداران ایران مورد استفاده قرار نمی‌گیرد. ( 4 )
[/JUSTIFY]
پیوست ها
شکل 4- نمای برش‌خورده کندوی لانگستروت استاندارد ایران و اندازه قاب آن ( 4 )
شکل 4- نمای برش‌خورده کندوی لانگستروت استاندارد ایران و اندازه قاب آن ( 4 )
نمایه کاربر
mellifera
مدیر سایت زنبورعسل ایران
مدیر سایت زنبورعسل ایران
پست: 4166
تاریخ عضویت: پنج‌شنبه ۲۵ آذر ۱۳۸۹, ۱۲:۰۰ ق.ظ
محل اقامت: آذربایجان شرقی-مرند
تشکر کرده: 4565 دفعه
تشکر شده: 2800 دفعه
تماس:

Re: بررسی انواع کندوهای مدرن در ایران

پست توسط mellifera »

کندوهای مورد استفاده در ایران

برای بررسی کندوهای مورد استفاده در ایران شانزده منطقه زنبورداری مورد بازدید قرار گرفته، در این روش از میان کندوهای ساخته شده در کارگاه های کندوسازی یا از کندوهای زنبورداران پنج نمونه انتخاب و اندازه برداری شده است. شکل شماره 5 – جدول شماره 4 .
در بررسی مقایسه‌ای میان اندازه‌های گرفته شده در این مناطق (به جز کندوهایی که بر اثر خطای ساخت ایجاد شده‌اند) سه سری اندازه قابل مشاهده است؛ چرا که سازندگان و مصرف‌کنندگان این نوع کندوها بر اندازه کندوی خود آگاه بوده و بر استفاده از این اندازه‌ها اصرار داشته‌اند.


جدول 4- نمونه فرم اندازه‌برداری کندوهای لانگستروت ایران ( 4 )
شکل 5- نقشه مورد استفاده در اندازه‌برداری کندوی لانگستروت ایران (4 )
پیوست ها
جدول 4- نمونه فرم اندازه‌برداری کندوهای لانگستروت ایران ( 4 )
جدول 4- نمونه فرم اندازه‌برداری کندوهای لانگستروت ایران ( 4 )
شکل 5- نقشه مورد استفاده در اندازه‌برداری کندوی لانگستروت ایران (4 )
شکل 5- نقشه مورد استفاده در اندازه‌برداری کندوی لانگستروت ایران (4 )
نمایه کاربر
mellifera
مدیر سایت زنبورعسل ایران
مدیر سایت زنبورعسل ایران
پست: 4166
تاریخ عضویت: پنج‌شنبه ۲۵ آذر ۱۳۸۹, ۱۲:۰۰ ق.ظ
محل اقامت: آذربایجان شرقی-مرند
تشکر کرده: 4565 دفعه
تشکر شده: 2800 دفعه
تماس:

Re: بررسی انواع کندوهای مدرن در ایران

پست توسط mellifera »

[JUSTIFY]1- کندوی لانگستروت دماوندی
اندازه این کندو نسبت به کندوی لانگستروت آمریکایی تغییرات کمی داشته و به اندازه‌های کندوی لانگستروت یونان نزدیک است. کف این کندو با صرف اندکی وقت از بدنه جدا می‌گردد، اما به علت نصب دریچه پرواز در بدنه امکان جابجایی آن با طبق وجود ندارد (بدنه و طبق این کندو با یکدیگر فرق دارد.). این کندو درپوش داخلی یا لایه عایق سقف ندارد.


شکل 6- نمای برش‌خورده کندوی لانگستروت دماوندی و اندازه قاب آن ( 4 ) [/JUSTIFY]
پیوست ها
شکل 6- نمای برش‌خورده کندوی لانگستروت دماوندی و اندازه قاب آن ( 4 )
شکل 6- نمای برش‌خورده کندوی لانگستروت دماوندی و اندازه قاب آن ( 4 )
نمایه کاربر
mellifera
مدیر سایت زنبورعسل ایران
مدیر سایت زنبورعسل ایران
پست: 4166
تاریخ عضویت: پنج‌شنبه ۲۵ آذر ۱۳۸۹, ۱۲:۰۰ ق.ظ
محل اقامت: آذربایجان شرقی-مرند
تشکر کرده: 4565 دفعه
تشکر شده: 2800 دفعه
تماس:

Re: بررسی انواع کندوهای مدرن در ایران

پست توسط mellifera »

[JUSTIFY]2- کندوی لانگستروت نجف آبادی
این کندو صندوقی است و قسمت کف آن جدا نمی‌شود. کندو دارای فضای اضافه در قسمت بالای قاب‌هاست. این کندو درپوش داخلی یا لایه عایق سقف ندارد. ارتفاع قاب 12 میلی‌متر کوتاه‌تر از کندوی لانگستروت آمریکا است.


شکل 7- نمای برش‌خورده کندوی لانگستروت نجف‌آبادی و اندازه قاب آن ( 4 )
[/JUSTIFY]
پیوست ها
شکل 7- نمای برش‌خورده کندوی لانگستروت نجف‌آبادی و اندازه قاب آن ( 4 )
شکل 7- نمای برش‌خورده کندوی لانگستروت نجف‌آبادی و اندازه قاب آن ( 4 )
نمایه کاربر
mellifera
مدیر سایت زنبورعسل ایران
مدیر سایت زنبورعسل ایران
پست: 4166
تاریخ عضویت: پنج‌شنبه ۲۵ آذر ۱۳۸۹, ۱۲:۰۰ ق.ظ
محل اقامت: آذربایجان شرقی-مرند
تشکر کرده: 4565 دفعه
تشکر شده: 2800 دفعه
تماس:

Re: بررسی انواع کندوهای مدرن در ایران

پست توسط mellifera »

3- کندوی لانگستروت آمل، خرم اباد و تهران
این کندو صندوقی است و کف آن جدا نمی‌شود. کندو درپوش داخلی یا لایه عایق سقف ندارد. ارتفاع قاب این کندو 5 الی 7 میلیمتر کوتاهتر از قاب کندوی لانگستروت آمریکا است.



شکل 8- نمای برش‌خورده کندوی لانگستروت آمل، خرم‌آباد و تهران و اندازه قاب آن ( 4 )
پیوست ها
شکل 8- نمای برش‌خورده کندوی لانگستروت آمل، خرم‌آباد و تهران و اندازه قاب آن ( 4 )
شکل 8- نمای برش‌خورده کندوی لانگستروت آمل، خرم‌آباد و تهران و اندازه قاب آن ( 4 )
نمایه کاربر
mellifera
مدیر سایت زنبورعسل ایران
مدیر سایت زنبورعسل ایران
پست: 4166
تاریخ عضویت: پنج‌شنبه ۲۵ آذر ۱۳۸۹, ۱۲:۰۰ ق.ظ
محل اقامت: آذربایجان شرقی-مرند
تشکر کرده: 4565 دفعه
تشکر شده: 2800 دفعه
تماس:

Re: بررسی انواع کندوهای مدرن در ایران

پست توسط mellifera »

[JUSTIFY]نکاتی دیگر درباره کندوی زنبور عسل ایران

در طرح اولیه، این کندو دارای بدنه و کف جدا شونده بوده است، ولی هم‌اکنون کندوها صندوقی‌اند. این کندو در طرح اولیه دارای درپوش داخل بوده که امروزه از آن استفاده نمی‌شود. هیچ‌یک از کندوسازهای مورد بررسی نقشه‌ای از کندو نداشتند و خطای ساخت میان اندازه‌ مورد‌نظر استاد‌کار و کندوی ساخته‌شده بسیار زیاد است. (چنانچه با توجه به جثه زنبور و دقت در فضای زنبور از استاندارد DIN 7168 گرید m استفاده کنیم،( جدول شماره 5 ) حداکثر تلرانس* برای طول کندو 8/0 ± میلی‌مترخواهد بود.)

جدول 5- استاندارد 7168 DIN*
اندازه قاب‌ها نیز نوسان بسیار داشت و در ساخت آن از چوب‌های نامناسب استفاده شده بود. بیشتر قاب‌ها دارای تاب و انحراف در زاویه °90 و بیش از نیمی از قاب‌های بلند دو سیم و بقیه سه سیم بودند (قاب لانگستروت امریکا چهار سیم است.) در محل عبور سوراخ سیم قطعه فلزی استفاده نشده بود و سیم‌ها با اندک فشاری به داخل چوب فرو رفته، شل می‌شدند. همچنین چوب پایین قاب‌ها شیار نداشت.
در بررسی کندوهای لانگستروت ایران سه مشکل عمده به چشم می‌خورد:
1- نبود یکدستی در اندازه کندو
نظر سازندگان و زنبورداران در مورد اندازه کندوی لانگستروت یکسان نیست. خطاهای ساخت نیز بیش از حد مجاز است. در نتیجه، در اندازه ی کندو و قاب تنوع زیادی وجود دارد. زنبوردار نیز که به دلایل مختلف مانند خرید و فروش قاب و کندو و غیره نمی‌تواند کندوهای خود را از یک سازنده و با اندازه‌های یکسان تهیه کند، در زنبورستان خود با مجموعه ناهمگونی از قاب‌ها و کندو‌ها روبرو می‌شود. بزرگ‌ترین آسیب این ناهمگونی در اندازه‌های کندو و قاب، بر هم خوردن اصل اساسی کندو؛ یعنی فضای زنبور است. گاه ممکن است قاب به کف کندو و به قاب‌های پایین چسبیده و یا با طرفین خود فاصله بیش از اندازه فضای زنبور ایجاد کند.
در کندویی که بین قاب و دیواره یا کف کندو راه برای عبور زنبور نباشد، زنبور راه خود را از داخل قاب باز می‌کند. ( شکل شماره 9 )

شکل 9- قاب رایج در ایران که قسمت کناره‌ها و پایین آن موم بافی نشده است ( 4 )
اما نظر طراحان کندو بر استفاده از چنین قابی نبوده و اساس کار زنبورداری صنعتی بر استفاده از تمامی قاب است. شکل شماره 10 )

شکل 10- قابی که تمام سطح آن موم‌بافی شده است. ( 4 )
اختلاف سطح مؤثر موم‌بافی در قاب کامل بافته شده و قابی که قسمت‌های پایین و کنار آن باز باشد حدود 5 الی 7 درصد است. (حجم مؤثر کندوی لانگستروت ایران 5 الی 7 درصد کمتر از کندوی لانگستروت آمریکا است.)
در شرایطی که موم‌بافی زنبور به چوب پایینی و کناری قاب نرسد، تمامی وزن سلول‌های پر از تخم یا عسل بر روی چوب بالایی قاب می‌افتد. چنین قابی به دلیل گرمای شدید تابستان، تکان‌های وسیله نقلیه و یا تکانیدن قاب توسط زنبوردار از ناحیه‌ سلول‌های بالایی دچار پارگی یا کشیدگی شده و سلول های پاره شده قاب در بازسازی توسط زنبور به سلول نر تبدیل می‌‌شوند. ( شکل های شماره 11 و 12 ) این سلول‌ها دارای شکل نامنظم بوده ، عرض آن برابر سلول کارگر و ارتفاع آن به 5/1 تا 2 برابر سلول کارگر میرسد و با سلول‌های نر طبیعی که زنبور بنا بر غریزه خود می‌سازد تفاوت دارد. ( شکل های شماره 13 و14)
شکل سلول‌های نر ساخته‌شده توسط زنبور شش ضلعی منتظم بوده که ابعاد آن در حدود 5.7 تا 6.9 میلی‌متر است و چنانچه زنبور نر در آنها متولد شود، نمای خارجی آنها به دایره‌ نزدیک می‌شود.

شکل 11- سلول‌های نر که بر اثر خرابی قاب و سیم‌کشی ایجاد شده‌اند ( 4 )

شکل 12- نمایی از کشیدگی در سلول‌های بالای قاب (4 )

شکل شماره 13 - سلول‌های طبیعی نر بافته‌شده توسط زنبور ( 4 )



این پدیده در زنبورداری ایران فراگیر بوده و سبب ایجاد بیش از اندازه زنبور نر در کندو می‌شود که نتیجه آن مصرف عسل بیشتر، تکثیر کنه و‌اروا و خرابی بیش از نود درصد از قاب‌هایی است که می‌تواند بین 3 الی 4 سال مورد استفاده قرار گیرند. قابی که اتصال سلول‌های آن فقط به چوب بالایی باشد در دستگاه عسل‌گیری دچار شکست می‌‌شود. پوکه شکسته‌شده یا غیر‌ قابل استفاده شده یا در صورت استفاده مجدد در کندو تاب بر می‌دارد و در یک طرف سلول نر و در طرف دیگر سلول‌های کوچک تشکیل می‌دهد. انحنای این نوع قاب‌ها ممکن است سبب هم‌جوشی با دیگر قاب‌ها شده یا فرم قاب‌های کناری را برهم زند. پولک‌تراشی این قاب‌ها به علت سطح ناصاف دشوار است و امکان استفاده از چاقوی پولک بردار یا ماشین های اتوماتیک برداشت عسل وجود ندارد . در قابی که کناره‌های داخلی آن باز باشد، پیدا کردن ملکه و کنترل آن زمان‌گیر می‌شود. در این قاب شاخون‌برداری زمان‌بَر بوده، امکان پنهان ماندن تعدادی از شاخون‌ها از چشم زنبوردار زیاد است. در کندوی نامناسب همیشه تعداد زیادی زنبور بین قاب‌های بالا و پایین له می‌شوند.
اندازه ناهمگون کندوهای یک زنبورستان کار زنبوردار با کندو را وقت‌گیر و دشوار می‌کند.
قاب، طبق، نیم طبق و درب بیرونی ممکن است نیاز به جابجایی از کندویی به کندوی دیگر داشته باشند. گاه قاب‌ها را باید با فشار داخل کندو قرار داد و گاه قاب به داخل کندو می‌افتد. گاه درب کندو بسته نمی‌شود و گاه زنبور از شیار درب عبور می‌کند، در طبق و نیم‌طبق نیز همینطور.
2- نبود عایق در سقف کندو
کندوی زنبورعسل همیشه در فضای باز و در برابر عوامل طبیعی قرار دارد. ایران نیز سرزمینی است با آب و هوای متنوع که اختلاف دمای زمستان و تابستان و شب و روز در آن بسیار است و کندوی مناسب باید زنبور را از این نوسانات دمایی حفظ کند. در کندوهای ساخت ایران ضخامت چوب بدنه مناسب است، اما در بدنه بسیاری از آنها به علت استفاده از چوب دو تکه و اتصال سر به سر، درز وجود دارد. در این میان کمترین توجه به مهم‌ترین بخش کندو یعنی سقف شده است. به علت پنهان بودن چوب سقف در زیر ورق فلزی، از تخته‌های نازک با اتصال نامناسب استفاده شده است. چنانچه در 15 تا 20 درصد از کندوها‌ی نو و بیش از 70 درصد از کندوهای کارکرده شیار چوب‌ها باز شده و ورق فلزی روی کندو از داخل در پیداست.( شکل شماره 15 )
در حد فاصل بالای قابها و زیر در کندوی لانگستروت ایران فضای خالی وجود دارد که کاربری آن یکی جهت ایجاد فضای اضافی برای خوشه زدن زنبور در هنگام مهاجرت بوده و دیگری عایق کردن سقف کندو . چنانچه چوب سقف کندو 19 تا 20 میلیمتر باشد و همچنین روی قابها از درپوش داخلی استفاده گردد، این فاصله سبب دوجداره شدن سقف کندو شده و آن را از تغییرات دمایی حفظ می کند.
درپوش داخلی که در بدو ورود کندوی لانگستروت به ایران وجود داشته سالهاست که از این کندو حذف شده و ضخامت چوب درب سقف نیز کاهش یافته و در مواردی به 5 میلیمتر هم رسیده است( 4 ) در نتیجه این فضای اضافه نقش اولیه خود را در عایق کردن کندو از دست داده برعکس سبب بهم خوردن تعادل دمایی کندو می گردد. این فضا فاصله زنبور را در سقف کندو بهم زده موجب هرزبافی در روی قابها می گردد.
تعداد بسیار محدودی از زنبورداران با استفاده از شربت خوری بشقابی در این فضا زنبور را تغذیه می کنند که شربت خوری قابی جایگزین بهتری برای این کار است .



شکل 15- نمای داخلی درب کندو بدون عایق ( 4 )

در هوای سرد: در زمستان زنبورداران برای گرم نگه داشتن کندو از پارچه یا گونی زیر سقف کندو و روی قاب‌ها استفاده می‌کنند و سطح بیرونی را نیز ممکن است با پلاستیک یا دیگر وسایل بپوشانند. این روش تاثیری در حفظ دمای داخلی کندو نداشته و انرژی گرمایی ارزشمند کلنی از ناحیه سقف کندو به بیرون نشت می کند. بخار آب ناشی از فعالیت خوشه زنبورها در برخورد با سقف سرد کندو به آب تبدیل شده و بر روی قابها چکه می کند. این آب محیط مناسبی برای رشد قارچ ها و بروز بیماری ها در کندو ایجاد کرده و یکی از مشکلات جدی زنبورداران است.
در هوای گرم: دمای هوا در سایه و آفتاب بسیار متفاوت است و اساس کار هواشناسی در اعلام دمای هوا، دمای سایه است. این دما در آفتاب بسیار بالاتر است و اگرچه به دلیل زاویه‌ تابش آفتاب در نقاط مختلف کره زمین، فصول مختلف و تفاوت طول روز نمی‌توان فرمول مشخصی برای دمای آفتاب مشخص کرد، اما در شرایط آب و هوایی سرزمین ایران اختلاف دمای سایه و آفتاب ظهر تابستان تا 15 درجه هم می‌رسد. کندوهای ساخت ایران با روکش سقف فلزی و چوب نازک زیر آن شبیه اتومبیل پارک‌شده زیر آفتاب تابستان است.
آزمایش:
روش کار: دماسنج میله‌ای( شکل شماره 16) در فضای خالی زیر درب کندوی یک طبقه با 10 قاب جمعیت قرار داده شده و نتایج زیر به‌دست آمده است. جدول شماره 6 - ( 4 )

شکل 16 – دماسنج میله ای ( 4 )

جدول 6- بررسی دمای داخل کندو ( 4 )

شکل 17- روش اندازه‌گیری دمای هوا در زیر درب کندو ( 4 )

هنگام گرم شدن داخل کندو، تمام تلاش زنبورها برای تعدیل دمای کندوست. بخشی از زنبورها برای خنک کردن کندو در جلو دریچه‌ پرواز و داخل کندو شروع به بال زدن می‌کنند و گروهی نیز به دنبال تهیه‌ آب می‌روند. چنانچه موفق به خنک کردن کندو نشوند از کندو بیرون آمده، جلو و زیر کندو جمع می‌شوند. این واکنش زنبورها از یک سو با مصرف عسل همراه بوده و از سوی دیگر به کاهش شهدآوری منجر می‌شود. گرمای شدید داخل کندو روند تخم‌ریزی ملکه و پرورش نوزادان را نیز دچار اختلال می‌کند.
3- طرح صندوقی بدنه کندو
انواع کندوهای موجود در دنیا چه کندوی لانگستروت و چه دیگر کندوها، همگی بدنه و کف جدا از هم دارند و ایران از معدود کشورهایی است که کندوی صندوقی (یکپارچه) در آن استفاده می‌‌شود. کندو با کف جدا‌شونده مزیت‌هایی دارد که زنبورداران ایران از آن بی‌بهره‌اند، از جمله:
الف) نبض کلنی در کف کندوست و زنبوردار با بررسی کف کندو می‌تواند وضع کلنی را تشخیص دهد.
ب) تمیز کردن کف کندو آسان است، به‌ویژه در بهار و آغاز فعالیت کلنی. در یک روز آفتابی و گرم می‌توان در کمترین زمان و بدون باز کردن در کندو و ایجاد تنش، کف کندو را از زنبورهای مرده یا دیگر مواد پاک کرد.
ج) ادغام آسان دو کندوی ضعیف در کمترین زمان ممکن، بدون آنکه به جابجایی قاب‌ها نیازی باشد.
د) در کندوی دو طبقه چنانچه زنبوردار به دلایلی مانند تخم‌ریزی ملکه در طبقه بالا و غیره، بخواهد وضع کندو را جابجا کند، بدون نیاز به بیرون آوردن قاب‌ها می‌تواند به آسانی طبقه بالا را به پایین و پایین را به بالا منتقل کند.
ه) در زنبورداری ایران گاه تعداد زیادی کندوی خالی در زنبورستان وجود دارد، اما زنبوردار نیازمند طبق است و نمی‌تواند از آنها استفاده کند. چنانچه کف و بدنه از هم جدا باشند، می‌توان از بدنه‌ها به جای طبق استفاده کرد.
لازمه بسیاری از تکنیک‌های زنبورداری جابجایی جای طبق با بدنه کندو است که در طرح کندوی صندوقی این امکان وجود ندارد.
چند نکته:
نکته 1: واحدهای اندازه‌گیری شامل کیلومتر، متر، سانتی‌متر، میلی‌متر و ..... هریک کاربرد خاص داشته و استفاده نابجا از این واحدها سبب اتلاف وقت و یا بروز خطا می‌شود. همانطور که نمی‌توان مسافت بین دو شهر را با واحد متر و یا ابعاد یک ساختمان را با واحد کیلومتر سنجید، سنجش اندازه کندو با واحد سانتی‌متر که در ایران رایج است، مستعد خطا در اندازه‌گیری و ساخت بوده و ضروری است که این اندازه به میلی‌متر تغییر کند. اندازه‌های درج شده در این نوشتار همگی بر اساس واحد میلی‌متر است.
نکته 2: اغلب کندوسازان و زنبورداران ایران اندازه‌های کندو را بر اساس اندازه‌های بیرونی آن می‌سنجند و چنانچه تغییراتی در ضخامت چوب بدنه کندو ایجاد شود، اندازه‌های داخلی کندو نیز تغییر کرده و سبب برهم خوردن فضای زنبور می‌‌شود. ضروری است که ساخت کندو براساس اندازه‌های داخلی آن باشد.

پیشنهاد:
زنبورداران گاه بنا بر دلایلی چون سهولت حمل و نقل کندو، سردسیر بودن منطقه، پوشش گیاهی و .... نیازمند کندوی کوچک‌تر از کندوی لانگستروت 10 قاب هستند، بنابراین اقدام به ساخت کندوهایی با قاب و بدنه کوچک‌تر کرده‌اند که خود سبب تنوع مدل‌ها شده و محدودیت‌هایی در مبادلات اقتصادی زنبورداران به ویژه در خرید یا فروش کلنی ایجاد می‌کند. در کنار این کار، راه‌حل دیگری وجود دارد آن هم ثابت نگاه داشتن اندازه قاب و ساخت کندوهایی با تعداد قاب کمتر است (یک کشور، یک قاب). با این روش گرچه اندازه کندوها متفاوت است، ( جدول شماره 7 ) ولی جابجایی و خرید و فروش کندو و استفاده از قاب آن که امری رایج در زنبورداری است، مشکلی در کار زنبوردار ایجاد نمی‌کند.

جدول 7– عرض کندوهای لانگستروت با تعداد قاب‌های متفاوت ( 4 )

2- ساخت کندو باید به گونه‌ای باشد که قیمت تمام‌شده کندو افزایش چندانی نداشته باشد:
3- کندو باید توسط سازندگان محلی قابل ساخت باشد.
4- کندو باید قابلیت حمل و نقل در شرایط دشوار مناطق کوهستانی را داشته باشد.
در این نوشتار بیشتر به طرح مشکل کندوی زنبورعسل در ایران پرداخته شده و راه حلی به ویژه در بخش اندازه کندو ارائه نشده است. دلیل آن وجود نزدیک به 5/3 میلیون کندوی لانگستروت از انواع یاد شده در دست زنبورداران ایران است.
گرچه اراده بسیار قوی برای یکسان‌سازی کندوهای لانگستروت در بین زنبورداران ایران وجود دارد، اما طبیعی است که زنبورداران هر منطقه بخواهند که اندازه کندوی مورد استفاده آنها فراگیر شود که خود چالشی بسیار جدی در برابر طرح بهبود اندازه کندوست و طلب می‌کند که این کار با توجه به اهداف کلان و درازمدت صنعت زنبورداری کشور صورت گیرد.
شرکت طراحی- مهندسی هفت‌گوهر
توضیحات:
Imperial measurement -1: سیستم اندازه‌گیری است که در کشور انگلستان اختراع گردیده و هم اکنون در انگلستان ، آمریکا، استرالیا، نیوزلند و برخی دیگر کشورها مورد استفاده قرار می گیرد. این سیستم در اندازه‌گیری ابعاد کوچک از واحدی به نام اینچ استفاده می‌کند که هر اینچ برابر با 25.4 میلی‌متر است . تقسیمات کوچک‌تر از اینچ به صورت 1/4اینچ، 1/8اینچ ، 1/16اینچ الی1/124 است.
مثال 3/8اینچ برابر است با 9.52 میلی‌متر
1/2اینچ برابر است با 12.7 میلی‌متر
3/4اینچ برابر است با 19.05 میلی‌متر
5/( 8)12 اینچ برابر است با 320.67 میلی‌متر

2- تلرانس: میزان انحراف مجاز از معیار
3- DIN: استاندارد کشور آلمان است که با استاندارد بین‌المللی ISO بسیار نزدیک و گاه یکسان است.

تنظیم:امین جهانی سایت زنبورعسل ایران
منابع:
سایت http://www.dave-cushman.net
سایت http://www.honeyshop.co.uk/index.html
سایت http://www.beesource.com
شرکت طراحی مهندسی هفت گوهر
استاندارد 1416 - ویژگیهای کندوی زنبورعسل http://std.isiri.org/userstd/stdsearch.aspx[/JUSTIFY]
پیوست ها
جدول 5- استاندارد 7168 DIN*
جدول 5- استاندارد 7168 DIN*
شکل 9- قاب رایج در ایران که قسمت کناره‌ها و پایین آن موم بافی نشده است ( 4 )
شکل 9- قاب رایج در ایران که قسمت کناره‌ها و پایین آن موم بافی نشده است ( 4 )
شکل 10- قابی که تمام سطح آن موم‌بافی شده است. ( 4 )
شکل 10- قابی که تمام سطح آن موم‌بافی شده است. ( 4 )
شکل 12- نمایی از کشیدگی در سلول‌های بالای قاب (4 )
شکل 12- نمایی از کشیدگی در سلول‌های بالای قاب (4 )
شکل شماره 13 - سلول‌های طبیعی نر بافته‌شده توسط زنبور ( 4 )
شکل شماره 13 - سلول‌های طبیعی نر بافته‌شده توسط زنبور ( 4 )
شکل 15- نمای داخلی درب کندو بدون عایق ( 4 )
شکل 15- نمای داخلی درب کندو بدون عایق ( 4 )
شکل 16 – دماسنج میله ای ( 4 )
شکل 16 – دماسنج میله ای ( 4 )
بررسی دمای داخل کندو
بررسی دمای داخل کندو
جدول 7– عرض کندوهای لانگستروت با تعداد قاب‌های متفاوت ( 4 )
جدول 7– عرض کندوهای لانگستروت با تعداد قاب‌های متفاوت ( 4 )
نمایه کاربر
mohammad123
کاربر ویژه سایت زنبورعسل
کاربر ویژه سایت زنبورعسل
پست: 458
تاریخ عضویت: دوشنبه ۲۰ آبان ۱۳۹۲, ۷:۱۱ ب.ظ
محل اقامت: فارس
تشکر کرده: 552 دفعه
تشکر شده: 321 دفعه
تماس:

Re: بررسی انواع کندوهای مدرن در ایران

پست توسط mohammad123 »

سلام
تشکر از مدیر محترم سایت
عکس از نقشه های سفید رنگ کوچک و نا خوانا هست واگر تصویر با کیفیت و قابل خواندن باشه بهتر ه
ممنون از لطف شما تصویر
نمایه کاربر
daryush
کاربر ویژه سایت زنبورعسل
کاربر ویژه سایت زنبورعسل
پست: 217
تاریخ عضویت: جمعه ۱۷ خرداد ۱۳۹۲, ۸:۲۳ ب.ظ
محل اقامت: پردیس تهران
تشکر کرده: 348 دفعه
تشکر شده: 327 دفعه
تماس:

Re: بررسی انواع کندوهای مدرن در ایران

پست توسط daryush »

سلام

طبق قوانین سایت برای تشکر از هر نوشته و تحقیق باید کلید تشکر را فشار داد... ولی به نظر من کاری که شما انجام دادید بالاتر از یک تشکر میباشد و در نوع خودش یک شاهکاره چه عرض کنم عالیه دیگه باید دستنوشته هاو نقشه هامو جمع کنم بذارم کنار
دست آقای سلیمانی عزیز هم درد نکنه ما رو یاد هنرستان انداختند...
زنبورداری طبیعی بلیط ورود به تئاتر طبیعت می باشد
نمایه کاربر
mellifera
مدیر سایت زنبورعسل ایران
مدیر سایت زنبورعسل ایران
پست: 4166
تاریخ عضویت: پنج‌شنبه ۲۵ آذر ۱۳۸۹, ۱۲:۰۰ ق.ظ
محل اقامت: آذربایجان شرقی-مرند
تشکر کرده: 4565 دفعه
تشکر شده: 2800 دفعه
تماس:

Re: بررسی انواع کندوهای مدرن در ایران

پست توسط mellifera »

mohammad123 نوشته شده:سلام
تشکر از مدیر محترم سایت
عکس از نقشه های سفید رنگ کوچک و نا خوانا هست واگر تصویر با کیفیت و قابل خواندن باشه بهتر ه
ممنون از لطف شما تصویر

با سلام کافیه روی تصویر کلیک کنین تا بزرگتر بشه.و تصویر در اندازه واقعی نشون داده بشه. تصویر
نمایه کاربر
mohamadjavad_15
کاربر فعال سایت زنبورعسل
کاربر فعال سایت زنبورعسل
پست: 54
تاریخ عضویت: جمعه ۶ اردیبهشت ۱۳۹۲, ۳:۰۰ ب.ظ
محل اقامت: jiroft
تشکر کرده: 57 دفعه
تشکر شده: 48 دفعه
تماس:

Re: بررسی انواع کندوهای مدرن در ایران

پست توسط mohamadjavad_15 »

سلام لطفا دوستان جواب بدن که از کندوهای لانگستروت گرم هستند یا سرد یعنی اینکه شان ها به صورت موازی با سوراخ پرواز قرار دارند یا به صورت عمودتصویر
آخرین ويرايش توسط 1 on mohamadjavad_15, ويرايش شده در 0.
[IMG]http://www.canstockphoto.com/black-and-white-bee-with-sunglasses-15499436.html[/IMG]
نمایه کاربر
mohamadjavad_15
کاربر فعال سایت زنبورعسل
کاربر فعال سایت زنبورعسل
پست: 54
تاریخ عضویت: جمعه ۶ اردیبهشت ۱۳۹۲, ۳:۰۰ ب.ظ
محل اقامت: jiroft
تشکر کرده: 57 دفعه
تشکر شده: 48 دفعه
تماس:

Re: بررسی انواع کندوهای مدرن در ایران

پست توسط mohamadjavad_15 »

کندوی گرم یا سرد
پیوست ها
کندوی سرد
کندوی سرد
کندوی گرم
کندوی گرم
[IMG]http://www.canstockphoto.com/black-and-white-bee-with-sunglasses-15499436.html[/IMG]
نمایه کاربر
mellifera
مدیر سایت زنبورعسل ایران
مدیر سایت زنبورعسل ایران
پست: 4166
تاریخ عضویت: پنج‌شنبه ۲۵ آذر ۱۳۸۹, ۱۲:۰۰ ق.ظ
محل اقامت: آذربایجان شرقی-مرند
تشکر کرده: 4565 دفعه
تشکر شده: 2800 دفعه
تماس:

Re: بررسی انواع کندوهای مدرن در ایران

پست توسط mellifera »

نمایه کاربر
mohamadjavad_15
کاربر فعال سایت زنبورعسل
کاربر فعال سایت زنبورعسل
پست: 54
تاریخ عضویت: جمعه ۶ اردیبهشت ۱۳۹۲, ۳:۰۰ ب.ظ
محل اقامت: jiroft
تشکر کرده: 57 دفعه
تشکر شده: 48 دفعه
تماس:

Re: بررسی انواع کندوهای مدرن در ایران

پست توسط mohamadjavad_15 »

سلام اقای جهانی در این مبحثی که لینک دادین نوشته شده که در هیچ کتابی بجز کتاب اطلس زنبور ها در مورد کندوی سرد و گرم بحث نشده ولی من خودم در کتاب دکتر شهرستانی دیدم که در مورد کندوی گرم و سرد توضیح داده شده و هدفم از گذاشتن عکس ها و مطالب بالا این بود که ایا در ایران کندوهای لانگستروت در دو نوع گرم و سرد ساخته میشوند و یا اینکه فقط یک نوع کندوی لانگستروت وجود داره
[IMG]http://www.canstockphoto.com/black-and-white-bee-with-sunglasses-15499436.html[/IMG]
نمایه کاربر
mohamadjavad_15
کاربر فعال سایت زنبورعسل
کاربر فعال سایت زنبورعسل
پست: 54
تاریخ عضویت: جمعه ۶ اردیبهشت ۱۳۹۲, ۳:۰۰ ب.ظ
محل اقامت: jiroft
تشکر کرده: 57 دفعه
تشکر شده: 48 دفعه
تماس:

Re: بررسی انواع کندوهای مدرن در ایران

پست توسط mohamadjavad_15 »

تصویر
[IMG]http://www.canstockphoto.com/black-and-white-bee-with-sunglasses-15499436.html[/IMG]
نمایه کاربر
mellifera
مدیر سایت زنبورعسل ایران
مدیر سایت زنبورعسل ایران
پست: 4166
تاریخ عضویت: پنج‌شنبه ۲۵ آذر ۱۳۸۹, ۱۲:۰۰ ق.ظ
محل اقامت: آذربایجان شرقی-مرند
تشکر کرده: 4565 دفعه
تشکر شده: 2800 دفعه
تماس:

Re: بررسی انواع کندوهای مدرن در ایران

پست توسط mellifera »

با سلام احتمال زیاد کندوهای اردبیلی یا کندوهای مربعی شکل همون نمونه کندوهای سرد و گرم می باشند.
موضوع جدید ارسال پست

چه کسی حاضر است؟

کاربران حاضر در این انجمن: کاربر جدیدی وجود ندارد. و 2 مهمان